1.本书是国内第一本关于老街修复的书,能针对我国目前老街修复领域存在的不足,向设计师介绍古建老街修护
2.在介绍保护修复知识的同时配以完整的项目,是读者能更直观地了解古建修复。
编辑推荐
图书简介
全国各地有各式各样的古镇、老街,他们都蕴含深沉的文化底蕴。近年来古镇游的热潮盛行,各地地方政府都纷纷注资打造地方古镇、古街。该书从介绍古镇的历史概况、商业规划入手,并详尽解析了历史街区改造、规划与古建筑修复等各方面设计要点。其中涵盖西蜀地区、岭南地区、江南地区以及中原地区的特色古街与古建,完整和真实地展现当地的传统格局和历史风貌。全书从规划设计图纸到古建细部改造和施工说明,配合精美丰富的实景图片,内容详尽面面俱到。
图书目录
第一部份 街区保护
第一章: 城市与建筑遗产保护知识
一、怎样看待旧城与旧建筑
二、历史环境的形成
三、保护思想的产生与发展
四、国外保护法规、文献和国际组织
五、中国保护法规、文献和组织
六、遗产保护思想的发展
七、整体保护的思想
八、世界文化和自然遗产
第二章: 历史环境保护
一、城市化与文化遗产保护
二、历史文化名城名镇名村
三、历史文化名城保护规划
四、历史文化名镇名村保护规划
五、传统村落保护发展规划
六、城市历史环境保护相关问题
实例:
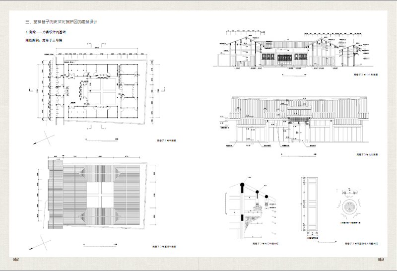
成都宽窄巷子历史街区规划工程
—— 街区规划设计图纸
—— 历史文化保护区建筑设计图纸
—— 施工过程及细部修复图
广州上下九商业步行街规划工程
—— 街区总规划图纸
—— 岭南骑楼泥塑图
广州荔枝湾及周边环境综合整治工程
—— 总规划:门前溪水,门外荔枝香
—— 改造新旧对比
上海新天地对石库门建筑的保护与改造
—— 新天地壹号楼、梧桐居、地中海餐厅改造
金华鼓楼里创意园规划设计方案
—— 改造现状 图
—— 现场施工图
中国西蜀古城规划设计方案
—— 布局艺术
—— 仿古城墙城楼规划设计
第二部份 建筑修复
第三章:历史文化街区保护
一、历史文化街区的基本概念
二、历史文化街区保护的内容、原则与保护规划要点
三、城市紫线
四、文物古迹地段的保护
第四章:建筑遗产保护
一、建筑遗产的基本知识
二、文物建筑保护
三、文物保护单位保护规划
四、文物建筑保护工程
五、历史建筑保护
六、建筑遗产的利用
第五章:建筑修复基本知识
实例:
WINNERS1855 会所修复工程
北京钱粮胡同四合院改造工程
山西平遥锦宅特色酒店改造工程
周庄花间堂改造工程
江阴刘家大院会所改造工程
上海采蝶轩改造工程
乌镇西栅三大会所改造工程
无锡伴山惠馆改造工程
苏州葑湄草堂改造工程
第一章: 城市与建筑遗产保护知识
一、怎样看待旧城与旧建筑
二、历史环境的形成
三、保护思想的产生与发展
四、国外保护法规、文献和国际组织
五、中国保护法规、文献和组织
六、遗产保护思想的发展
七、整体保护的思想
八、世界文化和自然遗产
第二章: 历史环境保护
一、城市化与文化遗产保护
二、历史文化名城名镇名村
三、历史文化名城保护规划
四、历史文化名镇名村保护规划
五、传统村落保护发展规划
六、城市历史环境保护相关问题
实例:
成都宽窄巷子历史街区规划工程
—— 街区规划设计图纸
—— 历史文化保护区建筑设计图纸
—— 施工过程及细部修复图
广州上下九商业步行街规划工程
—— 街区总规划图纸
—— 岭南骑楼泥塑图
广州荔枝湾及周边环境综合整治工程
—— 总规划:门前溪水,门外荔枝香
—— 改造新旧对比
上海新天地对石库门建筑的保护与改造
—— 新天地壹号楼、梧桐居、地中海餐厅改造
金华鼓楼里创意园规划设计方案
—— 改造现状 图
—— 现场施工图
中国西蜀古城规划设计方案
—— 布局艺术
—— 仿古城墙城楼规划设计
第二部份 建筑修复
第三章:历史文化街区保护
一、历史文化街区的基本概念
二、历史文化街区保护的内容、原则与保护规划要点
三、城市紫线
四、文物古迹地段的保护
第四章:建筑遗产保护
一、建筑遗产的基本知识
二、文物建筑保护
三、文物保护单位保护规划
四、文物建筑保护工程
五、历史建筑保护
六、建筑遗产的利用
第五章:建筑修复基本知识
实例:
WINNERS1855 会所修复工程
北京钱粮胡同四合院改造工程
山西平遥锦宅特色酒店改造工程
周庄花间堂改造工程
江阴刘家大院会所改造工程
上海采蝶轩改造工程
乌镇西栅三大会所改造工程
无锡伴山惠馆改造工程
苏州葑湄草堂改造工程












