1.案例经典丰富,理论联系实际,可参考性极强。
2.每个案例均附有设计手记,让户型设计不再神秘。
3.详细解读五大户型,助你房产销售决策。
编辑推荐
图书简介
本书理论联系实际,详细解读五大户型。理论部分恰到好处,实践部分案例丰富而不冗余,简单易操作,同时暗示购房者需求和心态。
图书目录
第一部分 户型设计研究
第一节 户型是实现消费者居家生活的基本要素
一、户型设计首要关注市场,其次才是技术
二、户型设计应注意空间的七大关键点
三、优秀户型六说
第二节 住宅产品户型设计技巧
一、户型五大功能区设计技巧
二、 各种面积户型设计技巧
三、板楼、塔楼及板塔楼户型设计技巧
四、异形户型设计技巧
第二部分 户型案例
金牌小户型
翡翠蓝湾
翡翠蓝湾
翡翠绿洲
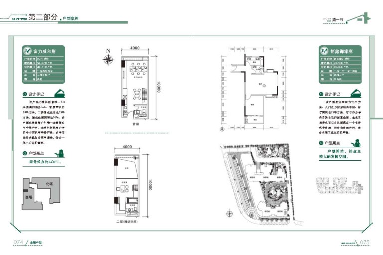
富力威尔斯
恒鑫御雅庭
恒鑫御雅庭
隽峰苑
尚东尚筑
世纪云顶雅苑
易丰大厦
朱美拉公寓
幸福立方
颐景华苑
朱美拉公寓
荔江美筑
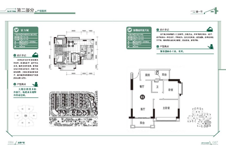
富力城
新塘锦绣新天地
幸福立方
富力桃园
尚东峰景
嘉骏豪苑
合生•云山熹景
贵贤上品
富力君湖华庭
东方新世界
星汇云锦
尚东峰景
尚东峰景
威尼国际酒店公寓
颐景华苑
滨江瑞城
保利中环广场
贵贤上品
合生云山熹景
罗马家园
达镖国际中心
.............
第一节 户型是实现消费者居家生活的基本要素
一、户型设计首要关注市场,其次才是技术
二、户型设计应注意空间的七大关键点
三、优秀户型六说
第二节 住宅产品户型设计技巧
一、户型五大功能区设计技巧
二、 各种面积户型设计技巧
三、板楼、塔楼及板塔楼户型设计技巧
四、异形户型设计技巧
第二部分 户型案例
金牌小户型
翡翠蓝湾
翡翠蓝湾
翡翠绿洲
富力威尔斯
恒鑫御雅庭
恒鑫御雅庭
隽峰苑
尚东尚筑
世纪云顶雅苑
易丰大厦
朱美拉公寓
幸福立方
颐景华苑
朱美拉公寓
荔江美筑
富力城
新塘锦绣新天地
幸福立方
富力桃园
尚东峰景
嘉骏豪苑
合生•云山熹景
贵贤上品
富力君湖华庭
东方新世界
星汇云锦
尚东峰景
尚东峰景
威尼国际酒店公寓
颐景华苑
滨江瑞城
保利中环广场
贵贤上品
合生云山熹景
罗马家园
达镖国际中心
.............





















